Ecostadesign progetta e produce oggetti con metodi di sostenibilità, con criteri energetici ed ambientali e con materiali certificati ed innovativi applicando il concetto di economia come sistema che evita sprechi. Una reinterpretazione del design assemblando materiali già in commercio per creare prodotti nuovi, ottenendo un vantaggioso bilancio energetico rispettoso del benessere del pianeta. I prodotti autoprodotti impiegano materiali e componenti di ultima generazione per massimizzare efficienza, sicurezza e risparmio energetico. L’autoproduzione è ispirata al concetto di pura ricerca e sviluppo di prodotti altamente innovativi.
Attività di consulenza alle aziende nell’ambito del disegno industriale:
Ecostadesign offre consulenza alle aziende locali e nazionali per la progettazione e lo sviluppo di nuovi prodotti. La collaborazione con gli uffici tecnici delle aziende sarà rivolta allo sviluppo di processi produttivi e nuovi materiali.L’obiettivo è di focalizzare l’attenzione sul design come valore aggiunto per lo sviluppo del tessuto produttivo locale e nazionale.
Attività di consulenza per la progettazione di interior design:
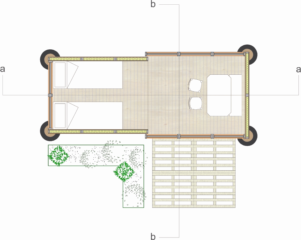
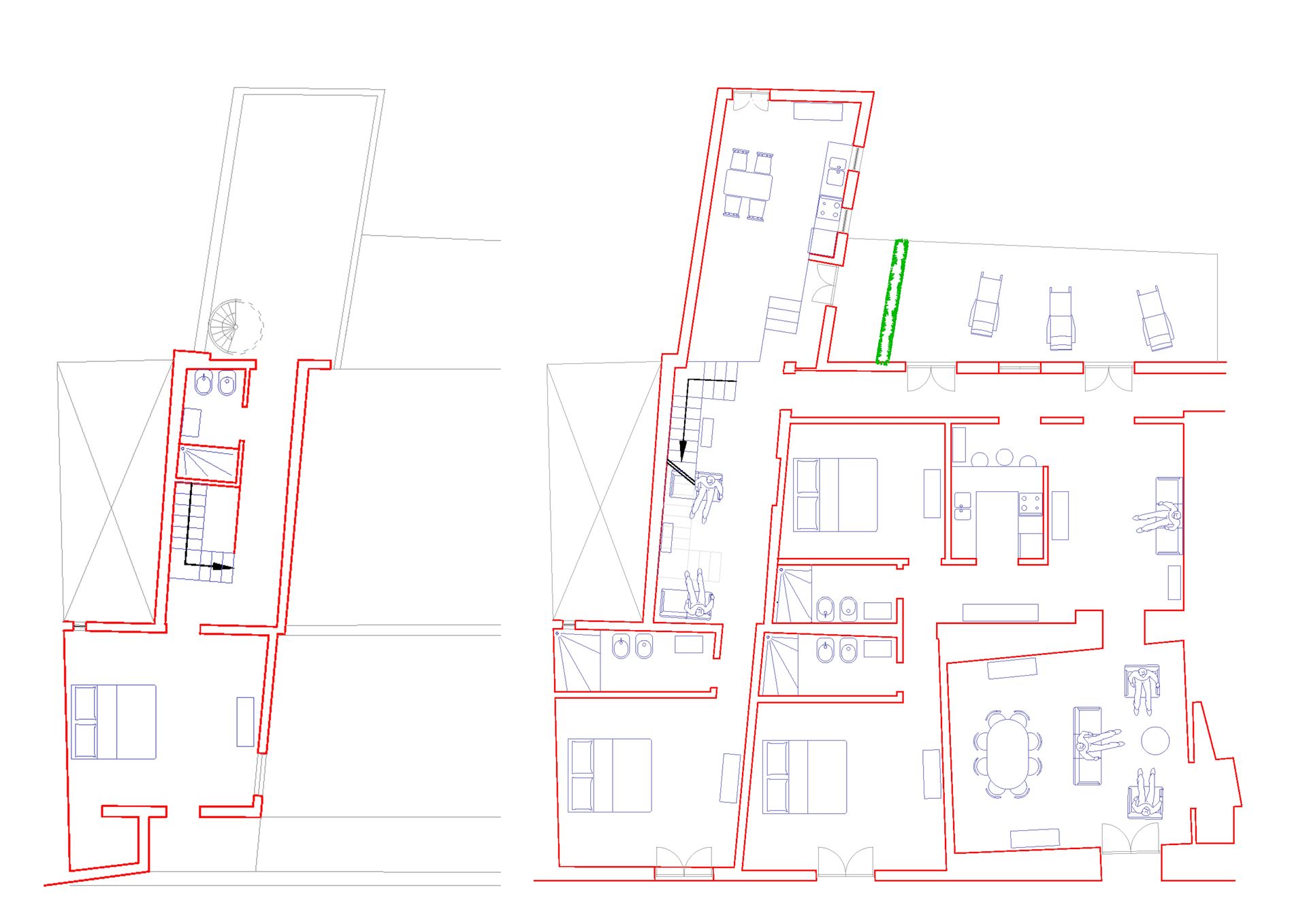
Per la progettazione di interni Ecostadesign offre consulenza a privati e studi di architettura per il disegno e lo sviluppo di arredi ed elementi su misura. L’obiettivo è colmare il gap tra progettazione e realizzazione di soluzioni efficaci ed efficienti. Ecostadesign offre, inoltre, consulenza per l’arredamento e la progettazione di giardini ed esterni.
Ecostadesign designs and produces objects with sustainability methods, with energy and environmental criteria and with certified and innovative materials, applying the concept of economy as a system that avoids waste. A reinterpretation of design by assembling materials already on the market to create new products, obtaining an advantageous energy balance that respects the well-being of the planet. The self-produced products use the latest generation materials and components to maximize efficiency, safety and energy savings. Self-production is inspired by the concept of pure research and development of highly innovative products.
Consultancy activities for companies in the field of industrial design:
Ecostadesign offers consultancy to local and national companies for the design and development of new products. The collaboration with the technical offices of the companies will be directed to the development of production processes and new materials. The objective is to focus attention on design as an added value for the development of local and national productive fabric.
Interior design consultancy activities:
For interior design, Ecostadesign offers consultancy to individuals and architectural firms for the design and development of custom-made furniture and elements. The goal is to bridge the gap between design and implementation of effective and efficient solutions. Ecostadesign also offers consultancy for furnishing and designing gardens and exteriors.












































































































